COOKIES

Diese Seite verwendet Cookies. Wenn Sie damit nicht einverstanden sind, können Sie diese Funktion in Ihrem Browser blockieren. Es kann allerdings sein, dass Sie dann nicht mehr sämtliche Funktionen dieser Seite nutzen können.

accept
VIBAG Logo
 

VISION BAU 6

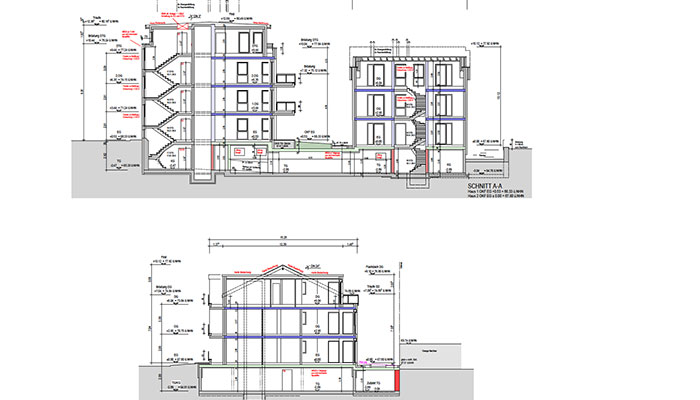
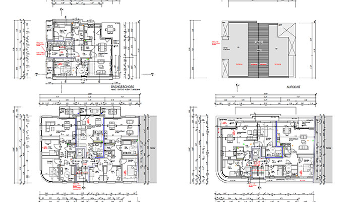
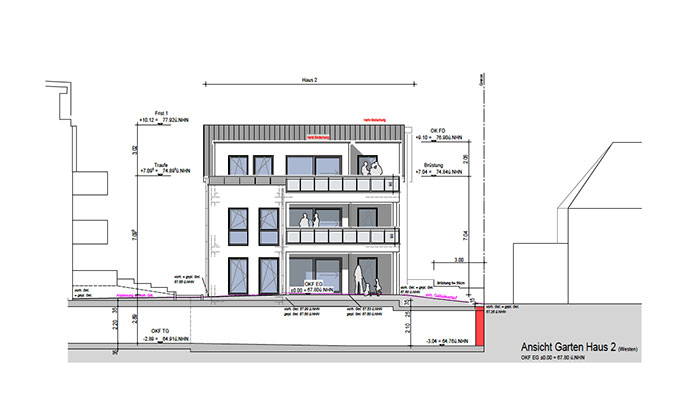
Das Grundstück befindet sich zentral in Siegburg. Fußläufig von der malerischen Parkanlage Michaelsberg wo die Abtei St. Michael besichtigt werden kann und der Park zum Entspannen einladen. Dort entstehen zwei neue Mehrfamilienhäuser mit 14 Wohnungen und einer Gesamtwohnfläche von 975 m².

PROJEKTDATEN:

Baubeginn: 2025
Baujahr: 2025 - 2026
Baugrundstück: 975,00 m2
Adresse: Heppekausenstr. 2 / Weierstr. 11
Wohnfläche – BT A: 847,88 m2
Wohnfläche – BT A: 327,35 m2
Anzahl Wohneinheiten: 14 Wohnungen
PKW-Stellplätze: 11 Stellplätze in der Tiefgarage & 2 Außenstellplätze
Leistungen:
• Projektentwicklung
• Architekten Leistungsphasen 1-9

Architekturbüro:
Dipl.- Ing. Manfred Hagen
Nogenter Platz 4
53721 Siegburg

Entwurfsverfasser:
Dipl.- Ing. Manfred Hagen

Beratung und Verkauf:

Kontaktinformationen: Download Info-PDF

Sie haben eine Frage oder möchten ein Angebot von uns erhalten?
KONTAKTIEREN SIE UNS!